联系电话
联系我们

温州市龙湾区永兴工业区

  联系人:王定桀  

  电  话:0577-88767789

  手  机:18005776338  

  传  真:0577-88767789

网址:xrdfm.com


G941电动隔膜阀

G941电动隔膜阀

型号:

产品特点:

编号:

点击:542次

在线咨询 : 点击这里给我发消息




产品介绍

G941电动隔膜阀              

产品名称:电动隔膜阀

产品型号:G941

设计与制造:BS5156

结构长度:BS5156

法兰连接尺寸:BS4504、DIN2532、JIS B2212、ANSI B16.1、ISO2004

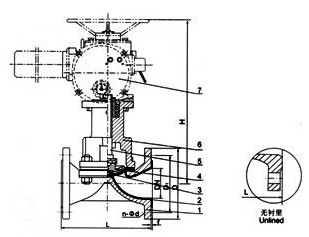
部件列表:1.阀体 2.阀体衬里 3.隔膜 4.阀瓣 5.阀杆 6.阀盖 7、电动头

  • 用途

本电动隔膜阀专用于控制非腐蚀性或一般腐蚀性介质,阀体内腔表面无衬里或覆有可供选择的各种橡胶、电动隔膜阀适用于不同工作温度和液体管路。

电动隔膜阀适用温度:≤85℃、≤100℃、≤120℃、≤150℃(按照衬里和隔膜材料)

压力等级:PN(MPa)0.6 1.0 1.6

二、材料

阀体:铸铁、球墨铸铁、碳钢、不锈钢

阀盖:铸铁、球墨铸铁、碳钢、不锈钢

衬里:无衬里、橡胶

隔膜:橡胶

阀瓣:铸铁、碳钢

阀杆:碳钢、不锈钢

支撑架:铸铁、碳钢

电动装置:组合件

  • 测试

衬里层:电火花检测 

试验与检验按BS6755标准 

公称压力:PN(MPa)

阀体:PN×1.5

密封:PN×1.1

  • 主要尺寸参数

 

公称通径 
DN

公称压力 
MPa

工作压力 
MPa

L
mm

D
mm

D1
mm

n-Фd
mm

f
mm

H
mm

型号

输出力矩 
MPa

启闭时间S

质量 
Kg/kilos

15

 

 

1.6

 

 

1.6

108

95

65

4-14

2

 

 

 

 

 

20

117

105

75

4-14

2

 

 

 

 

 

25

127

115

85

4-14

2

445

Z5-18/16

50

17

40

32

146

140

100

4-18

2

457

Z5-18/16

50

20

41

40

159

150

110

4-18

2

466

Z5-18/16

50

14

44

50

190

165

125

4-18

2

480

Z10-18/16

50

20

50

65

 

1.0

 

1.0

216

185

145

4-18

2

517

Z10-18/16

150

28

60

80

254

200

160

8-18

2

539

Z10-36/25

100

16

70

100

305

220

180

8-18

2

576

Z10-36/25

100

17

77

125

356

250

210

8-18

3

634

Z15-18/25

150

32

92

150

406

285

240

8-22

3

660

Z20-18/25

200

53

120

200

 

0.6

 

0.6

521

340

295

8-22

3

860

Z20-36/25

300

33

180

250

635

395

350

12-22

5

 

 

 

 

 

300

749

445

400

12-22

5



 关键词:阀门厂家,温州阀门厂家,龙湾阀门厂家,温州鑫荣达阀门管件有限公司

0

上一篇:没有了!